1 andar
-
343.00 m²
R$ 0 /m²
studio
sem suíte
4 Banheiros

Quer mais informações?
Fale com um de nossos especialistas.
Imobiliária parceira
JBEM IMÓVEIS LTDA
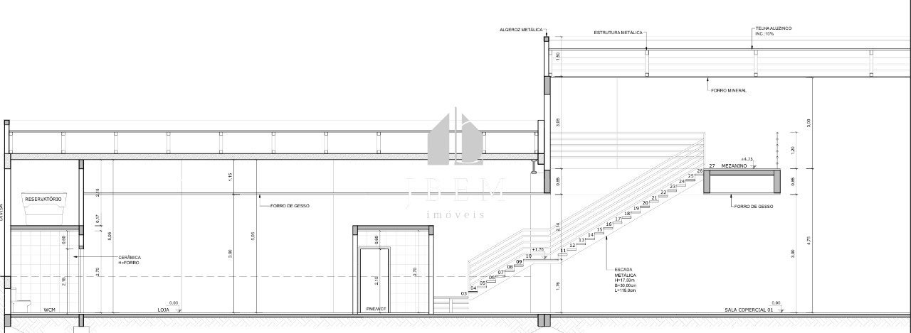
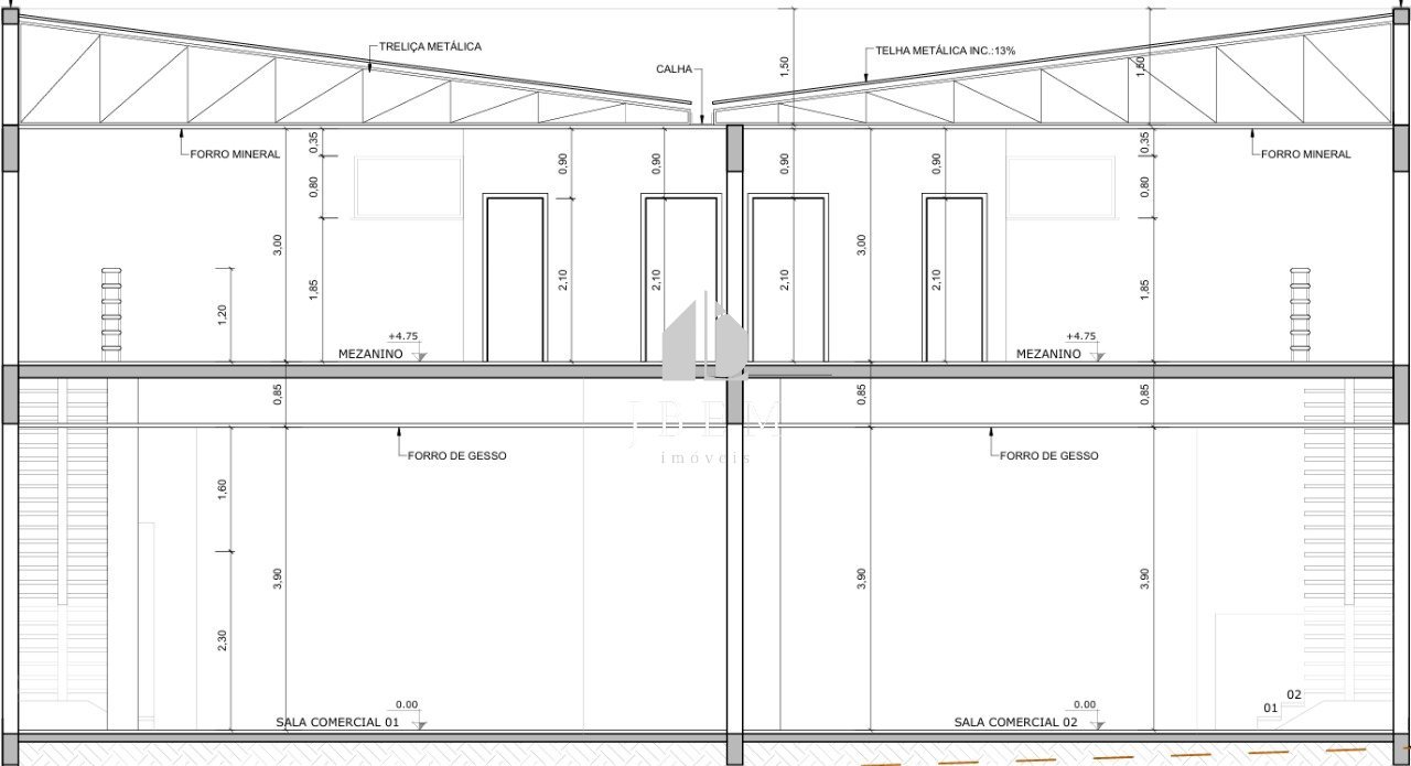
Apresentamos uma excelente oportunidade para o seu negócio: sala comercial nova em construção, com 271m² no pavimento térreo e um mezanino de 72m², projetada para oferecer funcionalidade, conforto e visibilidade em uma das principais ruas da cidade, com grande fluxo de pedestres e veículos. O imóvel conta com: Banheiros PNE (acessibilidade garantida) Copinha funcional, ideal para apoio interno Piso em porcelanato, proporcionando sofisticação e fácil manutenção Acabamento de forro em gesso, com excelente padrão de acabamento Guarda-corpo no mezanino, com segurança e design moderno Vitrine ampla, que valoriza a fachada e oferece excelente visibilidade para o seu negócio Ideal para lojas, clínicas, escritórios, showrooms ou qualquer atividade que exija espaço, boa apresentação e localização estratégica. Essa sala reúne tudo o que um empreendimento de sucesso precisa: espaço, elegância, acessibilidade e localização premium.
Veja fotos do imóvel separadas por ambientes