1 andar
-
569 m²
R$ 0 /m²
studio
sem suíte

Quer mais informações?
Fale com um de nossos especialistas.
Imobiliária parceira
JBEM IMÓVEIS LTDA
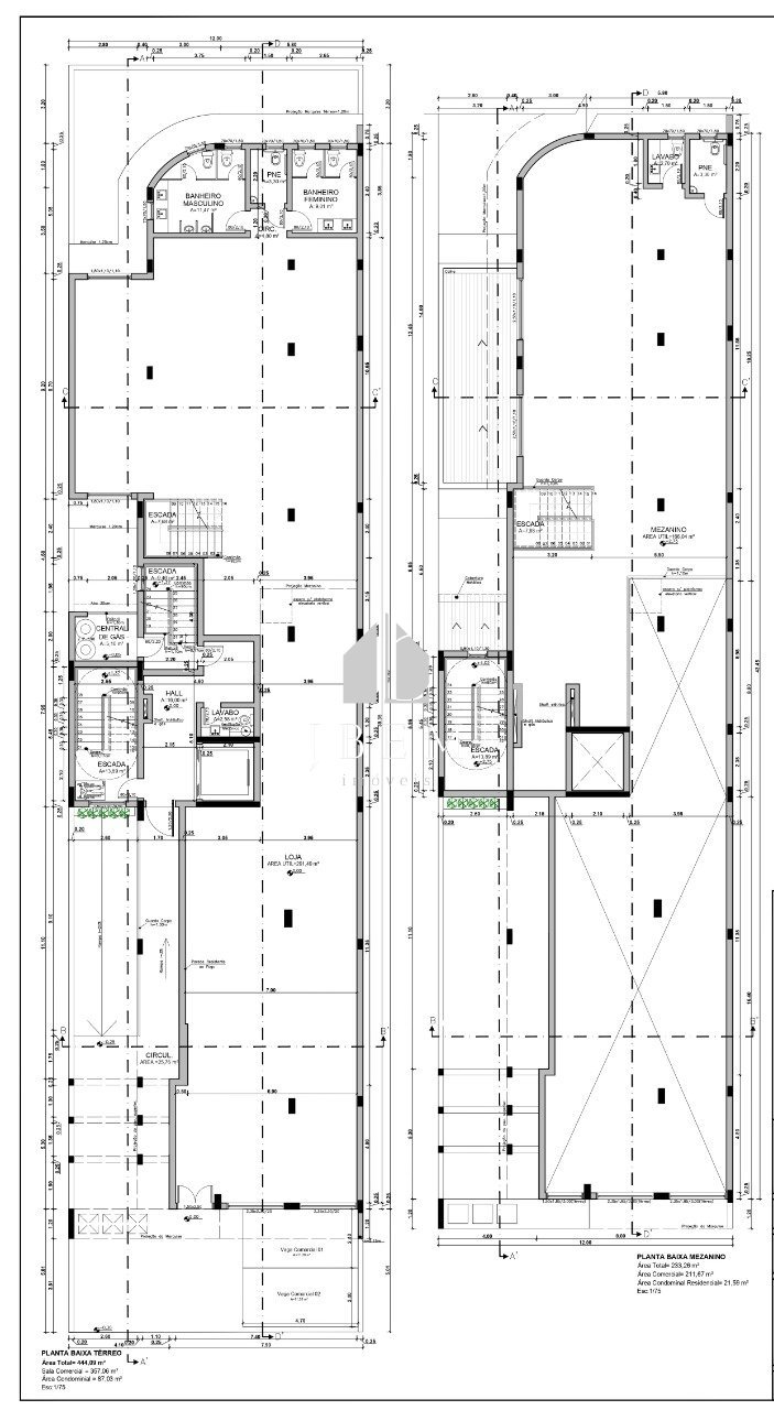
Nesta narrativa, mergulhe na experiência de imaginar seu negócio prosperando nesta sala comercial em construção, situada no coração do movimentado Centro de Santa Rosa. Com uma área generosa de 568,73m², esta sala apresenta um pé direito duplo que confere uma sensação de grandiosidade. Imagine-se recebendo seus clientes em uma recepção moderna e eficiente, seguida por uma área de copa bem equipada para os intervalos produtivos. O ambiente, adornado com piso porcelanato, evoca profissionalismo e requinte. E para dar ainda mais versatilidade ao espaço, um amplo mezanino proporciona espaço adicional para sua equipe ou reuniões privativas. A localização estratégica nesta avenida de alto fluxo traz visibilidade e acessibilidade para o seu empreendimento. Com previsão de conclusão para setembro de 2024, esta é uma oportunidade única para estabelecer sua empresa em um local de destaque. O valor do aluguel é de R$ 20.000,00, e garantias locatícias, sem a necessidade de fiador, estão disponíveis. Características do Imóvel: Recepção Copa Lavabo Piso Porcelanato Mezanino Perto de transporte público Perto de escolas Perto do Quartel
Veja fotos do imóvel separadas por ambientes