Menos de
R$ 1.000.000

1 andar
-
400.00 m²
R$ 2.385 /m²
studio
sem suíte
2 Banheiros

Quer mais informações?
Fale com um de nossos especialistas.
ou consulte as
Dúvidas Frequentes
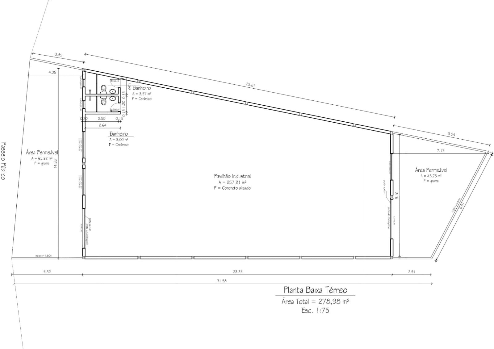
**Descrição do Imóvel Industrial em Sapucaia do Sul** Apresentamos uma excelente oportunidade de investimento em um imóvel industrial localizado na Rua Delfim Moreira, 367, no bairro Dihel, em Sapucaia do Sul/RS. Este espaço, ideal para diversas atividades comerciais e industriais, oferece uma estrutura versátil, perfeita para atender às necessidades do seu negócio. **Características do Imóvel:** - **Área Total:** 0m², ideal para personalização conforme suas demandas específicas. - **Banheiros:** 2 banheiros, proporcionando conforto e praticidade para colaboradores e clientes. - **Estacionamento:** Embora não conte com vagas de estacionamento, a localização estratégica facilita o acesso e a logística de transporte de mercadorias. - **Pavimento:** O imóvel está localizado no térreo, garantindo fácil mobilidade e acesso direto. **Diferenciais da Localização:** Situado em uma região em crescimento, o imóvel beneficia-se de uma infraestrutura robusta, com fácil acesso a principais vias e rodovias, facilitando a distribuição e o escoamento de produtos. Além disso, a proximidade com centros comerciais e industriais potencia o fluxo de clientes e fornecedores. Este imóvel é uma oportunidade única para quem busca expandir seus negócios em uma localização promissora. Não perca a chance de investir em um espaço que pode ser moldado de acordo com suas necessidades. Entre em contato para mais informações e agende uma visita!
Veja fotos do imóvel separadas por ambientes
Entenda o valor das parcelas para esse imóvel
Encontre mais imóveis em Dihel
Algumas sugestões para te ajudar a encontrar o imóvel dos sonhos
Ainda não encontrou o que procurava? Confira esses outros imóveis à venda
Principais bairros em Sapucaia do Sul, RS
Principais bairros em Sapucaia do Sul, RS