Menos de
R$ 28.000.000

1 andar
-
4088.00 m²
R$ 6.849 /m²
studio
sem suíte

Quer mais informações?
Fale com um de nossos especialistas.
ou consulte as
Dúvidas Frequentes
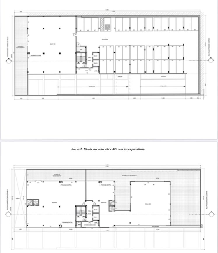
PRÉDIO - BAIRRO ESTORIL - BELO HORIZONTE O Edifício é um empreendimento novo e elaborado para abrigar empresas que necessitam de grandes espaços, com salas entre 113,91, 269,38 e 299,00 m². O primeiro pavimento conta com: Recepção e acesso ao hall dos elevadores para acesso aos andares das salas e garagens. Nos segundo e terceiro pavimentos, o edifício conta com 70 vagas de garagens livres e conjugadas, sendo todas cobertas. Do quarto ao oitavo pavimento ficam localizadas as salas comerciais, sendo que as salas de números: 301, 401 e 402 possuem áreas privativas. O oitavo conta com um terraço privativo. Destaque: Edifício totalmente revestido em granito e vidro, sol da manhã, 2 Elevadores, Hall decorado, Interfone, Portaria com porta de vidro eletrônica, 2 Portões eletrônicos para acesso às garagens, Cerca elétrica em toda propriedade, Alarme com monitoramento 24 horas, Jardins. Localização: localizado em um excelente ponto comercial com fácil acesso às principais vias da zona sul, drogarias, supermercados, padarias, além de estar a 5 minutos do BH Shopping, conta com o apoio das linhas de ônibus disponíveis. Agende sua visita!
Veja fotos do imóvel separadas por ambientes
Entenda o valor das parcelas para esse imóvel
Encontre mais imóveis em Estoril
Algumas sugestões para te ajudar a encontrar o imóvel dos sonhos
Ainda não encontrou o que procurava? Confira esses outros imóveis à venda
Principais bairros em Belo Horizonte, MG
Principais bairros em Belo Horizonte, MG