1 andar
-
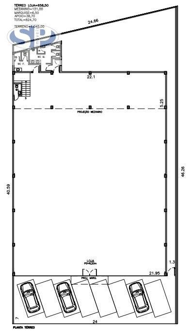
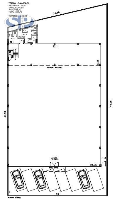
825 m²
R$ 0 /m²
studio
sem suíte

Quer mais informações?
Fale com um de nossos especialistas.
Imobiliária parceira
Sp Imóveis Industriais Corretagem e Administração Imobiliária Ltda.
Alugue Galpão com 1.050M² em Cambuci. Imóvel Comercial em São Paulo.
Veja fotos do imóvel separadas por ambientes