1 andar
-
10264 m²
R$ 0 /m²
studio
sem suíte

Quer mais informações?
Fale com um de nossos especialistas.
Imobiliária parceira
Brokers SP Brasil - Negócios Imobiliários
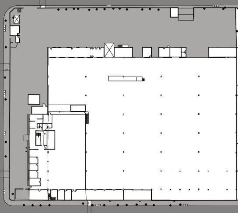
Prédio para locação em São Paulo-SP Seguem abaixo as informações dos módulos de galpões disponíveis (disponibilidade imediata) para locação, na Vila Leopoldina, São Paulo. Na condição atual, o imóvel consiste em um galpão de 7.800 m², um edifício com 1.820 m² e um restaurante com 630 m² (área total disponível para locação monousuário), além das vagas de garagem e pátio de manobras, para uso industrial/logística. Porém há a possibilidade de construção de lajes e fechamentos em estrutura metálica, o que permite a ocupação de operações de escritórios, espaço de eventos, centro de convenções e outros usos. O empreendimento está localizado em uma das regiões mais procuradas, devido ao baixo custo de ocupação e facilidade de acesso. LOCALIZAÇÃO: ACESSO: O imóvel está localizado próximo do CEAGESP e a: Parque e Shopping Villa Lobos, bairros de Pinheiros e Vila Madalena; 550m da Estação Ceasa da CPTM; 800m do acesso pela Via Local da Marginal Pinheiros; 3,0 Km da Marginal Tietê; 3,7 Km da Rodovia Anhanguera; 4,2 Km da Rodovia Castelo Branco; 4,6 Km da Rodovia dos Bandeirantes; 11,3 Km do Rodoanel. FACILITIES: A região conta com uma boa infraestrutura de restaurantes, bancos, supermercados, farmácias e demais serviços; e está próximo ao Parque e Shopping Villa Lobos (10 minutos para ir, 6 minutos para voltar). IMÓVEL: O imóvel possui área útil interna de 10.264 m² (fora as vagas de garagem e pátio de manobras), com as seguintes características: Subdivisível em módulos a partir de 1.470m², com possibilidade de interligação e/ou ocupação monousuário; Pé direito livre de 6-8 m; Iluminação natural; Piso em concreto armado; Cobertura em shed, com iluminação indireta; Portas nas docas; Docas e área interna de circulação de empilhadeiras com rampas de acesso; Instalação elétrica e hidráulica; Banheiros; Infraestrutura de dados e telefonia; Pátio manobras e/ou estacionamento com 100 vagas. EMPREENDIMENTO
Veja fotos do imóvel separadas por ambientes