1 andar
-
1127 m²
R$ 0 /m²
studio
sem suíte
4 Banheiros

Quer mais informações?
Fale com um de nossos especialistas.
Imobiliária parceira
MD NEGÓCIOS IMOBILIÁRIOS LTDA
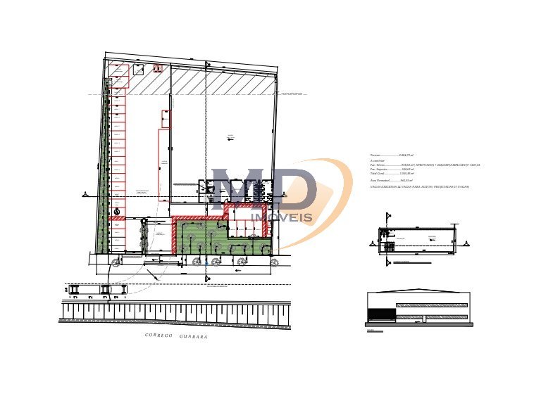
Galpão para Locação no Bairro Jaçatuba em Santo André - SP Localizado próximo à Avenida dos Estados com fácil acesso para Rodoanel Mário Covas e Marginal Tiete. Projeto aprovado para construção de Galpão Industrial de 1.127 m² área total, sendo 978 m² de área fabril. Existe a possibilidade de expansão para 1.200 m². As obras estão previstas para iniciar em 2025, mas podem ser antecipadas conforme a necessidade do cliente. Também existe a possibilidade de um BTS. Valor de locação sob consulta! Entre em contato para mais informações.
Veja fotos do imóvel separadas por ambientes