Menos de
R$ 300.000

1 andar
-
52 m²
R$ 4.423 /m²
2 quartos
sem suíte
1 Banheiro

Quer mais informações?
Fale com um de nossos especialistas.
ou consulte as
Dúvidas Frequentes
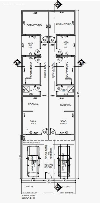
Descubra seu novo lar no acolhedor bairro Jardim Residencial Villagio Ipanema I, em Sorocaba, SP. Esta charmosa casa, construída em 2025, é perfeita para quem busca conforto e modernidade na zona Norte da cidade. Com uma área total de 52m², você terá espaço de sobra para viver momentos inesquecíveis. A residência conta com dois dormitórios aconchegantes, perfeitos para garantir noites tranquilas de descanso. O banheiro é funcional e bem distribuído, atendendo todas as suas necessidades diárias com praticidade. O ambiente integrado da sala e cozinha é um convite ao convívio familiar e à recepção de amigos, criando um espaço harmonioso e iluminado por sancas com luzes de LED que trazem um toque moderno ao ambiente. Os acabamentos em porcelanato proporcionam sofisticação e facilidade na manutenção do dia a dia. Esquadrias de alumínio completam o visual contemporâneo da casa. Para sua comodidade, a propriedade inclui uma vaga de garagem e uma prática área de serviço. Tudo isso localizado próximo a escolas, farmácias, supermercados e uma variedade de bares e restaurantes que facilitam sua rotina diária sem perder o lazer por perto. Venha conhecer essa oportunidade única de morar bem em Sorocaba!
Veja fotos do imóvel separadas por ambientes
Entenda o valor das parcelas para esse imóvel
Encontre mais imóveis em Jardim Residencial Villagio Ipanema II
Algumas sugestões para te ajudar a encontrar o imóvel dos sonhos
Ainda não encontrou o que procurava? Confira esses outros imóveis à venda
Principais bairros em Sorocaba, SP
Principais bairros em Sorocaba, SP
Mais casas em Jardim Residencial Villagio Ipanema II