Menos de
R$ 1.800.000

1 andar
-
173 m²
R$ 10.346 /m²
3 quartos
3 suítes
4 Banheiros
Quer mais informações?
Fale com um de nossos especialistas.
ou consulte as
Dúvidas Frequentes
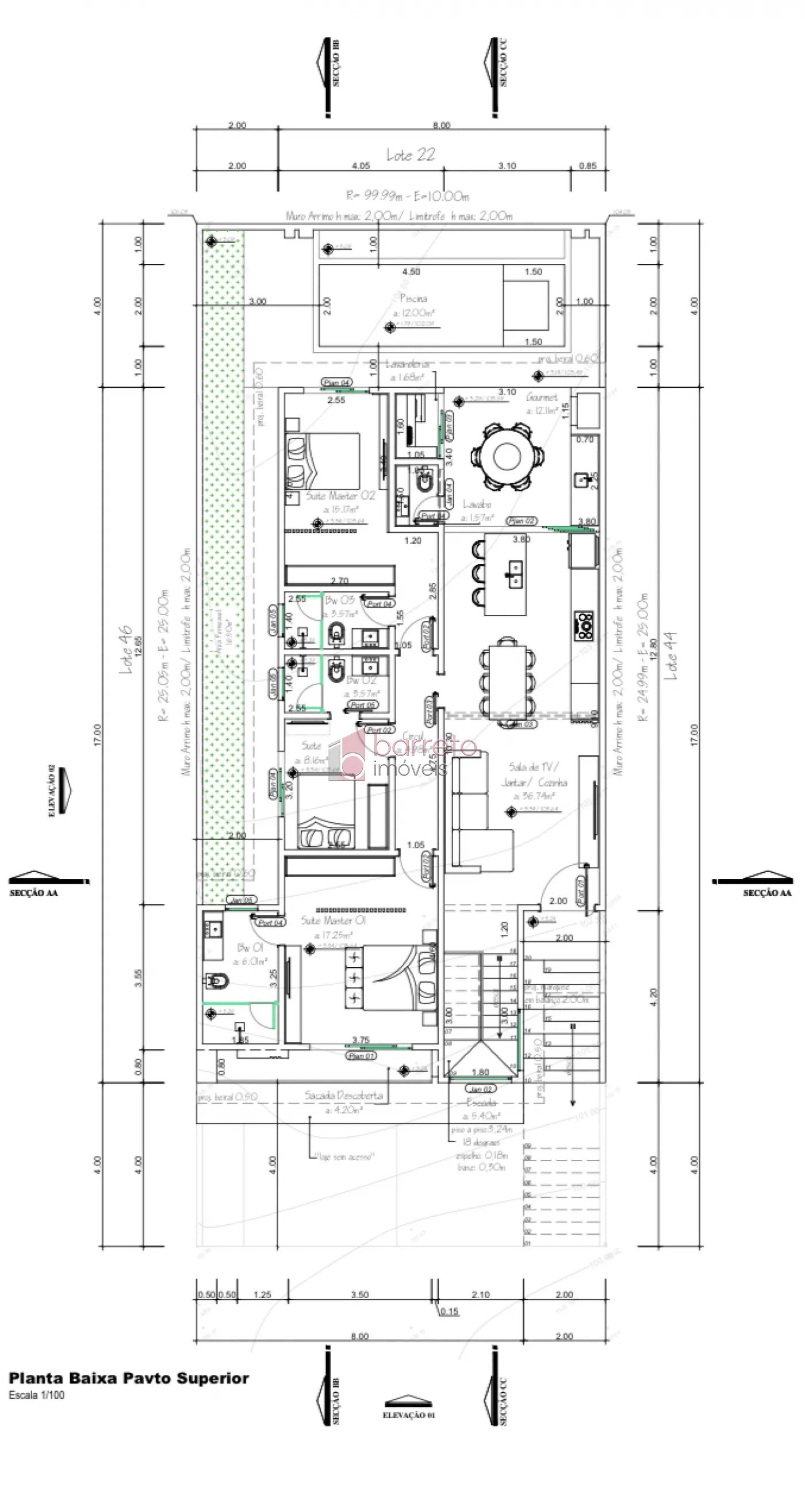
SOBRADO PARA VENDA NO CONDOMÍNIO RESERVA ERMIDA II - JUNDIAÍ/SP Casa em fase inicial de construção, o que oferece a grande vantagem de flexibilidade de pagamento direto com o proprietário até a finalização da obra. Além disso, você pode personalizar seu novo lar escolhendo materiais e acabamentos, pagando apenas a diferença, caso deseje dar um toque especial e exclusivo ao seu imóvel. Casa com 173,09 m² de área construída. Sendo térreo: 02 vagas de garagem, depósito, escritório. Piso superior: sala 02 ambientes, cozinha integrada, área gourmet com churrasqueira, lavabo, piscina, 03 suítes, sendo 01 master com closet e sacada, lavanderia. Nas proximidades do imóvel contém alguns comércios: Flow Jundiaí, Quarar Lavanderia, Só Ofertas Eloy, Wizard by Pearson Jundiaí Eloy Chaves, Empório Mineirão e Pizza Bar e Restaurante. Agende já sua visita!
Veja fotos do imóvel separadas por ambientes
Entenda o valor das parcelas para esse imóvel
Encontre mais imóveis em Jardim Ermida II
Algumas sugestões para te ajudar a encontrar o imóvel dos sonhos
Ainda não encontrou o que procurava? Confira esses outros imóveis à venda
Principais bairros em Jundiaí, SP
Principais bairros em Jundiaí, SP
Mais casas em Jardim Ermida II