Menos de
R$ 400.000

Andar baixo
Até 3º andar
36 m²
R$ 9.187 /m²
2 quartos
sem suíte
1 vaga
1 Banheiro
Varanda
Garagem

Quer mais informações?
Fale com um de nossos especialistas.
ou consulte as
Dúvidas Frequentes
Imobiliária parceira
L4S
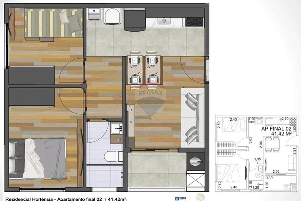
Descubra o seu futuro lar no coração de Arujá, no bairro Parque Nossa Senhora do Carmo. Este apartamento na planta oferece uma oportunidade única para quem busca conforto e praticidade em um condomínio fechado, com status de excelente preço. ENTREGA: OUTUBRO 2026 Área do empreendimento 900 metros. Apenas 12 unidades. - 12 apartamentos entre 37 e 48 metros - todos com varanda gourmet - 4 plantas diferentes a sua escolha - acabamento diferenciado - portaria eletrônica - elevador - garagem no sub-solo - gás canalizado para fogão - área pet - bicicletário - solarium com lazer e churrasqueira EXCELENTE LOCALIZAÇÃO próximo a comércios locais, escolas, transporte coletivo. - 5 minutos do centro Este imóvel foi planejado para maximizar cada espaço, proporcionando um ambiente agradável e funcional. Ao entrar, você encontrará cinco cômodos bem distribuídos, incluindo dois acolhedores dormitórios e um banheiro moderno, ideal para uma vida prática e confortável. Este é o momento perfeito para investir em sua felicidade e bem-estar, em um lugar que harmoniza vida urbana com a serenidade de um bairro tranquilo. Não perca a chance de conhecer este incrível lançamento. Seja bem-vindo ao seu novo lar em São Paulo, Região Sudeste do Brasil!
Veja fotos do imóvel separadas por ambientes
Entenda o valor das parcelas para esse imóvel
Encontre mais imóveis em Nossa Senhora do Carmo
Algumas sugestões para te ajudar a encontrar o imóvel dos sonhos
Ainda não encontrou o que procurava? Confira esses outros imóveis à venda
Principais bairros em Arujá, SP
Principais bairros em Arujá, SP
Mais apartamentos em Nossa Senhora do Carmo