Menos de
R$ 300.000

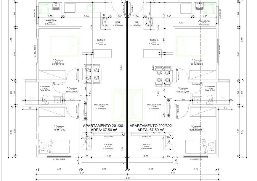
Apartamento
3º andar ou abaixo
2 quartos
sem suíte
1 vaga
1 Banheiro

Quer mais informações?
Fale com um de nossos especialistas.
ou consulte as
Dúvidas Frequentes
Imobiliária parceira
SANAIOTTO EMPREENDIMENTOS IMOBILIÁRIOS
Ótima Oportunidade de Investimento: Aptos de 67m² com previsão de entrega para Agosto de 2026!! 02 dormitórios, sala, cozinha, lavanderia e sacada com churrasqueira! Cada apto com uma garagem coberta! Preço válido até Dez/2025.
Veja fotos do imóvel separadas por ambientes
Entenda o valor das parcelas para esse imóvel
Encontre mais imóveis em Centro
Algumas sugestões para te ajudar a encontrar o imóvel dos sonhos
Ainda não encontrou o que procurava? Confira esses outros imóveis à venda
Principais bairros em Santa Rosa, RS
Principais bairros em Santa Rosa, RS